Vertical Machining Center CNC Programming Guide for Beginners
Vertical machining centers are a vital part of a cnc machine workshop, So here is a Vertical machining center programming example for cnc machinists who have just started learning cnc programming.
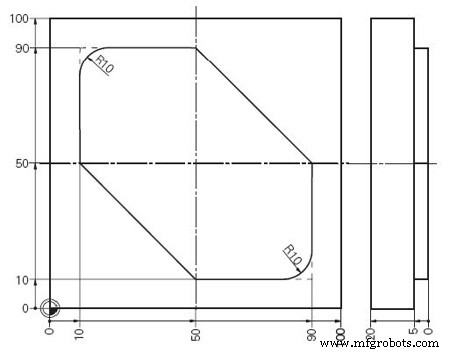
Vertical Machining Center Programming Example

Vertical Machining Center Programming Example
N10 T1 N20 S1000 M3 N30 G00 G40 G90 G17 X-30 Y60 N40 G43 Z50 H1 N50 Z-5 N60 G01 G41 X10 Y60 D1 F200 N70 Y80 N80 G02 X20 Y90 R10 N90 G01 X50 N100 X90 Y50 N110 Y20 N120 G02 X80 Y10 R10 N130 G01 X50 N140 X10 Y50 N150 Y65 N160 G40 X-30 Y60 N170 G00 Z200 M02
CNC Machine
- Vertical Machining Centers Explained: Features, Benefits, and Applications
- Advanced CNC Machining Centers: Precision for Aerospace & Beyond
- Beginner-Friendly Lathe CNC Programming Guide
- CNC Programming for Beginners: Learn with a Practical Example
- Step‑by‑Step CNC Lathe Programming Guide: Chamfer, Taper, Groove & Arc
- Beginner-Friendly Fanuc CNC Lathe Programming Example – Straight, Taper, and Arc Cuts
- Step-by-Step CNC Machining Center Programming Guide for Beginners
- CNC Turning Center Programming Tutorial: Step‑by‑Step Example for Beginners
- CNC Milling Program Example – Step-by-Step G‑Code Tutorial
- SELCA CNC Programming Sample – Step‑by‑Step Code Overview