Streamline Electrical Harness Design with E3.series
In this article you can learn how creating electrical harnesses for manufacturing can be simple and intuitive inside E3.series. Harnesses can have different applications such as industrial automation and for the automotive industry. See the full article.

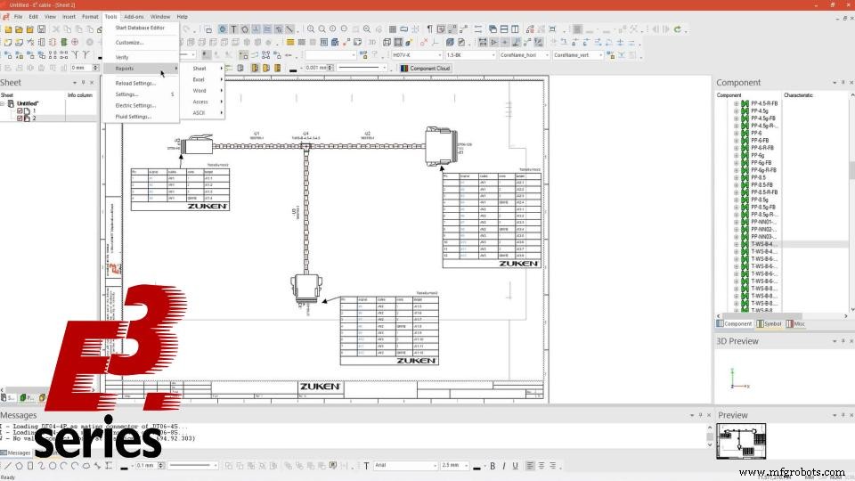
Harness creation begins with the insertion of a Formboard-type sheet, which has functionality for manufacturing development. Afterwards, the connectors are added to the project sheet with the set of cabling, which are specified in the exclusive tables of the E3.series formboard module, then the cable protection is added.
Finally, the list of materials and cables is automatically generated, containing all the important information to efficiently optimize your projects for your demand.
See the video below and how easy it is to work with E3.series:
Try NOW the industry-leading E-CAE E3.series tool in the world with technical training courses!
Click on the banner below:

Example of harness design for industry:
Subscribe to our Youtube channel here for more technical videos.
The E3.formboard
This is a complete solution for creating fabrication harness drawings on any sheet size with one or more fabrication drawings in the same project.
Some E3.formboard Functions
- Length of wires;
- Connection tables;
- Segment rotation.
Discover E3.formboard in full ON THIS LINK.
Test E3.series according to your demand using the button below:

Industrial Technology
- Effortless Assembly Design & Editing in E3.series
- Master Block Diagram Design in E3.series: Boost Electrical Project Efficiency
- Master Panel Routing in E3.series: A Step‑by‑Step Guide
- Design Electrical Panels Efficiently with E3.panel: Fast, Accurate, and Smart
- Master E3.series for Industrial Equipment Design: Unified Electrical & Mechanical Engineering
- E3.series 2015: Elevate Product Efficiency with Advanced Design Tools
- Polyurethane Insert Molding: Enhancing Fit and Function
- Designing DC Circuits with OrCAD: A Practical Guide
- Maximizing Production with Advanced Additive Manufacturing Software
- Build Complex Components with Protolabs' Insert Molding Technology