Industrial manufacturing
Industrial Internet of Things | Industrial materials | Equipment Maintenance and Repair | Industrial programming |
home  MfgRobots >> Industrial manufacturing >  >> Manufacturing Technology >> Industrial Technology

Flush-Head vs. Concealed-Head Fasteners: Key Differences Explained

Flush-Head vs. Concealed-Head Fasteners: Key Differences Explained

For custom enclosures or parts, self-clinching fasteners can be a designer’s best friend. They solve a whole host of challenges when it comes to mounting components, and because of their compact design and low profile, they are a win aesthetically, too.

Self-Clinching fasteners are threaded nuts, studs or standoffs that are mechanically pressed into metal, becoming a permanent part of the panel, enclosure or bracket. Self-clinching fasteners are often called by the name of the most common brand, ‘PEM®’ brand self-clinching fasteners, which is a trademark of PennEngineering & Manufacturing Corp.

Why Self-Clinching Fasteners Are Useful

Self-clinching fasteners are helpful because they are mounted so securely into a part or enclosure. In fact, for many self-clinching nuts, the screw will actually fail before the nut rotates in the material. Self-clinching fasteners are incredibly secure, because they become a permanent part of the enclosure once installed.

Self-clinching studs and standoffs can either be flush head or concealed head. Essentially, both flush- head and concealed-head fasteners achieve the same function. However, there are some key defining characteristics that make each of these fastener types unique from each other.

This blog will provide an overview of flush-head and concealed-head fasteners, and the scenarios in which each type is best used.

Flush-Head Fasteners

Flush-Head vs. Concealed-Head Fasteners: Key Differences Explained

Flush-head fasteners are mechanically pressed through a hole in the sheet metal from the outside, so they sit mostly flush with the outside edge. There is a slight indentation around the exterior of the metal from where it gets pressed in that makes them detectable.

This slight indentation can be minimized by having the metal grinded down so the fastener sits more flush with the host material, and can be made even less noticeable if a textured powdercoat is applied. When using both these methods, flush-head fasteners are minimally noticeable. However, they can still be felt by touch.

Flush-Head vs. Concealed-Head Fasteners: Key Differences Explained

Concealed-Head Fasteners

Flush-Head vs. Concealed-Head Fasteners: Key Differences Explained

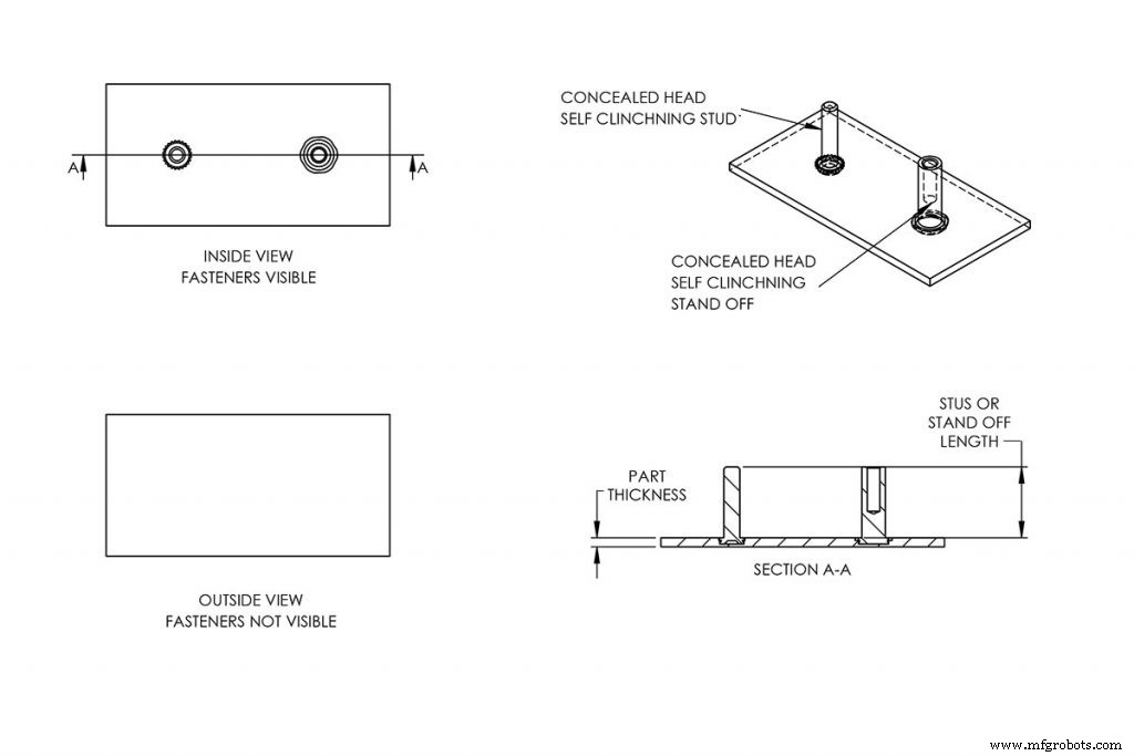
Instead of having the fastener pushed through the metal such as with flush-head, concealed-head fasteners are inserted into a machined blind pocket so that there is no contact with the outside edge. The pockets can be created with either a CNC mill or router.

Concealed-head fasteners are most commonly used for cosmetic reasons. However, they are also ideal for satisfying needs for watertightness and airtightness, because  the hole to insert the fastener only goes partially through the metal. Concealed-head fasteners can also serve IP rating requirements.

Flush-Head vs. Concealed-Head Fasteners: Key Differences Explained

One thing to note if you are choosing concealed-head fasteners for your design – they will require a minimum sheet thickness. This will ensure the CNC mill or router will have enough room to be able to machine the hole deeply enough into the metal for creating the pocket in which the fastener will sit.

Material

Gauge

Thickness

  Galvanneal   16 gauge   0.064″ | 1.61 mm
  Cold Rolled Steel   16 gauge   0.060″ | 1.52 mm
  Aluminum   14 gauge   0.064″ | 1.63 mm

(You’ll note stainless steel isn’t listed above – we are unable to install concealed-head fasteners in stainless steel, as there is currently no PEM®’ brand self-clinching fasteners for this application).

Tip: While we can achieve milled blind pockets on the thin sheet metals listed above, you may notice a bulge on the opposite side of the blind pocket (due to the material’s nominal thickness tolerance). Because of this, I typically advise customers when using concealed-head fasteners to go up one thickness than the minimal thickness, unless the minimum thickness is absolutely necessary for a design requirement.

The Key Differences

Flush-Head vs. Concealed-Head Fasteners: Key Differences Explained

While concealed-head and flush-head fasteners essentially achieve the same function, there are some critical ways in which they differ:

Flush head are pressed through the exterior of the metal. Concealed head are pressed into a pocket from the side they are used.

Flush-Head vs. Concealed-Head Fasteners: Key Differences Explained Flush-Head vs. Concealed-Head Fasteners: Key Differences Explained

Due to their installation methods, the fasteners have different profiles. Flush-head fasteners are slightly noticeable from the outside, though this can be minimized with grinding and powdercoat. Concealed-head fasteners have no noticeable profile. Because of this, they are most commonly used if aesthetics are a priority.

Flush-Head vs. Concealed-Head Fasteners: Key Differences Explained Flush-Head vs. Concealed-Head Fasteners: Key Differences Explained

Flush-head fasteners will not be air/watertight, because they go through the metal. Concealed-head fasteners are a better option, if it is important that the enclosure is tight to water, radio waves and/or air.

Flush-head fasteners are slightly cheaper than concealed-head fasteners. Concealed-head fasteners take more time to install because of the machined pocket. Both cost slightly more than conventional fasteners, but in general, fasteners are not a particularly expensive element of a custom enclosure or part.

There is a difference in height after the fasteners are installed. Concealed-head fasteners are measured from the interior of the surface from where the fastener is installed. Flush-head fasteners are measured from the outside of the enclosure’s surface, from where they are pushed through the metal.

Conclusion

Flush-Head vs. Concealed-Head Fasteners: Key Differences Explained

Whichever fastener types works best for your design, Protocase has a wide variety of concealed-head and flush-head fasteners in stock in order to build your enclosures, parts or panels in 2-3 days (with no minimum order).

Remember, my Engineering & Design Services team at Protocase is always here to help if you need it. Contact us by emailing info@protocase.com or calling 1-866-849-3911.

Happy designing!


Industrial Technology

  1. Java vs. C#: 10 Key Differences Explained
  2. Java vs Python: Core Differences and Choosing the Right Language
  3. PLCs vs RTUs: Key Differences and Market Trends
  4. Key Distinctions Between Mexican and U.S. Customs Brokerage: A Practical Guide
  5. 3‑Axis vs 5‑Axis Machining: What You Need to Know
  6. Digital vs. Face‑to‑Face Collaboration: A Clear Guide to Choosing the Right Approach
  7. Alloy Steel vs. Carbon Steel: Key Differences Explained for Optimal Material Selection
  8. SCADA vs. HMI: Key Differences and Their Role in Industry 4.0
  9. Understanding G‑Code vs M‑Code: Key Differences for CNC Operators
  10. CNC Milling vs. CNC Turning: Key Differences and Design Implications