Industrial manufacturing
Industrial Internet of Things | Industrial materials | Equipment Maintenance and Repair | Industrial programming |
home  MfgRobots >> Industrial manufacturing >  >> Manufacturing Equipment >> CNC Machine

CNC Lathe Programming: Using Radius Dimensioning for X‑Axis Cuts

Submit by: CNC Programmer

Summary

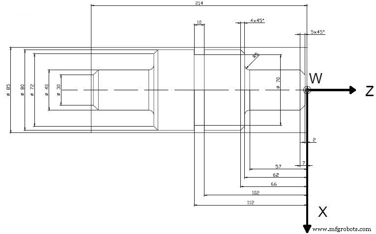
CNC lathe programming example, in this programming example for X-axis diameter values are not used but Radius values are used to program.

When in Radius mode/dimensioning the X-axis moves on a lathe will be the distance from the center. Thus a cut at X1 would result in a part that is 2mm in diameter.

Drawing/Image

CNC Lathe Programming: Using Radius Dimensioning for X‑Axis Cuts

CNC Program

% Albero
N010 G00 X150 Z200 T0101 M06
N020 G92 S2400
N030 G96 G95 F0.3 S300 M04 M08
N040 X50 Z-2
N050 G01 X-0.5
N060 G00 Z0
N070 X41
N080 G01 Z-115
N090 X45
N100 G00 Z0
N110 X37
N120 G01 Z-61
N130 X41 Z -65
N140 G00 Z0
N150 X33
N160 G01 Z-61
N170 X35
N180 G00 Z0
N190 X29
N200 G01 Z-61
N210 X31
N220 G00 Z0
N230 X25
N240 G01 Z-61
N250 X27
N260 G00 Z0
N270 X21
N280 G01 Z-56
N290 X25 Z-61
N300 G00 Z0
N310 X15
N320 G01 X21 Z-6 M09
N330 G00 X50 Z200 T0202 M06
N340 F0.15 S400 M08
N350 X15 Z0
N360 G01 Z-2
N370 X20 Z-7
N380 Z-57
N390 G02 X25 Z-62 I5 K0
N400 G01 X36
N410 X40 Z-66
N420 Z-115
N430 X42 M09
N440 G00 X50 Z200 T0303 M06
N450 Z-112 F0.1 S300 M08
N460 G01 X35
N470 G00 X50
N480 Z200 M05 M02

CNC Machine

  1. CNC Programming for Beginners: Step‑by‑Step Lathe Example
  2. Beginner-Friendly Lathe CNC Programming Guide
  3. Step‑by‑Step CNC Lathe Programming Guide: Chamfer, Taper, Groove & Arc
  4. Fanuc G21 G‑Code Example: Millimeter‑Based CNC Lathe Programming
  5. Beginner-Friendly Fanuc CNC Lathe Programming Example – Straight, Taper, and Arc Cuts
  6. Simple CNC Lathe Programming: Inch-Based Example for Beginners
  7. NUMS 322T CNC Program Example – Comprehensive G‑Code for CNC Machining
  8. NUMS 322T CNC Programming Sample – Step‑by‑Step Guide
  9. CNC Lathe Programming: Simple Contour Turning with Radius Example
  10. CNC Lathe Programming: Arc Radius Example Using G02 & G03 Codes