NUM 760 CNC Lathe: Contour Turning & Grooving – Full G-Code Example
Complete program example for NUM CNC lathe machines, in this cnc program first outer contour is turned and then a groove is machined with a separate tool.
- NUM CNC Lathe G Codes
- NUM CNC Lathe MCodes
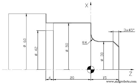
NUM 760 T Program Example

%159 N1 (AXE) N10 G90 G71 G80 G40 G92 S3000 N20 G0 G52 X0 Z0 (FINISHING CONTOUR) N30 T1 D1 M6 (TOOL#1) N40 G95 F0.08 N50 G97 S800 N60 M3 M42 N70 G0 X66 Z-24 N80 G96 S80 N90 G1 G41 X50 Z-24 M8 N100 Z0 M110 X38 N120 G3 X30 Z4 R4 N130 G1 X12 N140 X24 Z15 N150 X0 M9 N160 G97 S800 N170 G0 G40 X0 Z17 N180 G0 G52 X0 Z0 (Groove) N190 T4 D4 M6 (Tool#4) N200 G95 F0.05 N210 G0 X66 Z-24 N220 G96 S25 N230 G1 X42 M8 N240 G97 S800 N250 G0 X64 M9 N260 G0 G52 X Z0 M5 N270 M2
CNC Machine
- Master the Fanuc G75 Grooving Cycle: Step-by-Step CNC Program Guide
- Optimized Sinumerik CYCLE95 Contour Integration in a Calling Program
- CNC Lathe Programming: Simple Contour Turning with Radius Example
- CNC Lathe Guide: Turning a Diameter with a Simple G‑Code Program
- NUM CNC Mill Program: Outer Contour Cutting with Through Drilling & Counterbore
- CNC Lathe Taper Turning Program: Easy Step-by-Step Example
- CNC School Tutorial: Basic CNC Turning Program Example
- Contour Turning Simplified: Full G72 Facing Cycle CNC Lathe Program Example
- CNC Outside Turning with Radius: Step‑by‑Step Program Example
- CNC Lathe Inside Turning & Boring: Practical Program Example